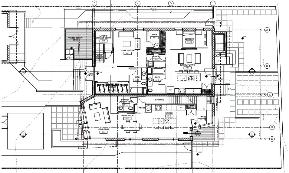
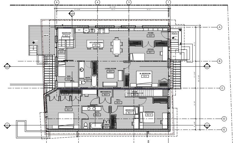
Here is the design that we presented at the community meeting last Thursday. We’re pretty excited by what Mark A and Kate have come up with.
The renovation of the existing house respects and maintains the original form and roof line, while the addition is intentionally contemporary, simple and contrasting. This design strategy highlights the relationship between old and new.
We are using traditional materials, including cedar siding and stucco, that are common throughout the neighbourhood. Deep window reveals introduced by the thicker Passive House walls add visual interest and depth to the facade. The landscaping ties everything together.









