As our beloved hole continues to take shape, the more technical among our readers may be wondering how things are looking on the Passive House modeling side.
As currently modeled in the Passive House Planning Package (PHPP), we are just squeaking by on the certification requirements. We had a Design Stage Review done by our certifier, Brittany, around the time we submitted for our Building Permit in the spring. The Design Stage Review is meant to be done before we start digging a big hole; and ideally, to give us some assurance that if things go according to plan, we are likely to achieve certification. Or, conversely, we would know early enough if any bigger changes were required. The review left me feeling confident in our design but with a long list of comments to respond to. Many of these comments involved refining conservative placeholder values for things like thermal bridging.
If I’m perfectly frank, I’d rather have a tooth pulled than spend a whole Saturday on PHPP updates. But there’s also the fact that things are still in flux, and while I want to know the energy impact of design changes, I am resistant to the notion that PHPP is our ultimate decision maker. There are design questions that absolutely impact the passive house model (and its predicted energy use), but are also influenced by other factors like practicality, cost, and aesthetics. PHPP doesn’t care about any of these things.
One thing that the model and I both care a lot about is simplicity. My strong inclination is to remove design complications, which by extension, tend to also remove modeling complications.
Here are the design questions we have been working through over the last while. We’re tackling each in the priority that Interactive needs answers to keep the project on schedule. I will tweak values in PHPP to test the impact, but will officially update them when we are satisfied that we have made good choices based on all of our criteria. With a bit of synergistic karma, our quest for simplicity will also lead to a certifiable passive house.
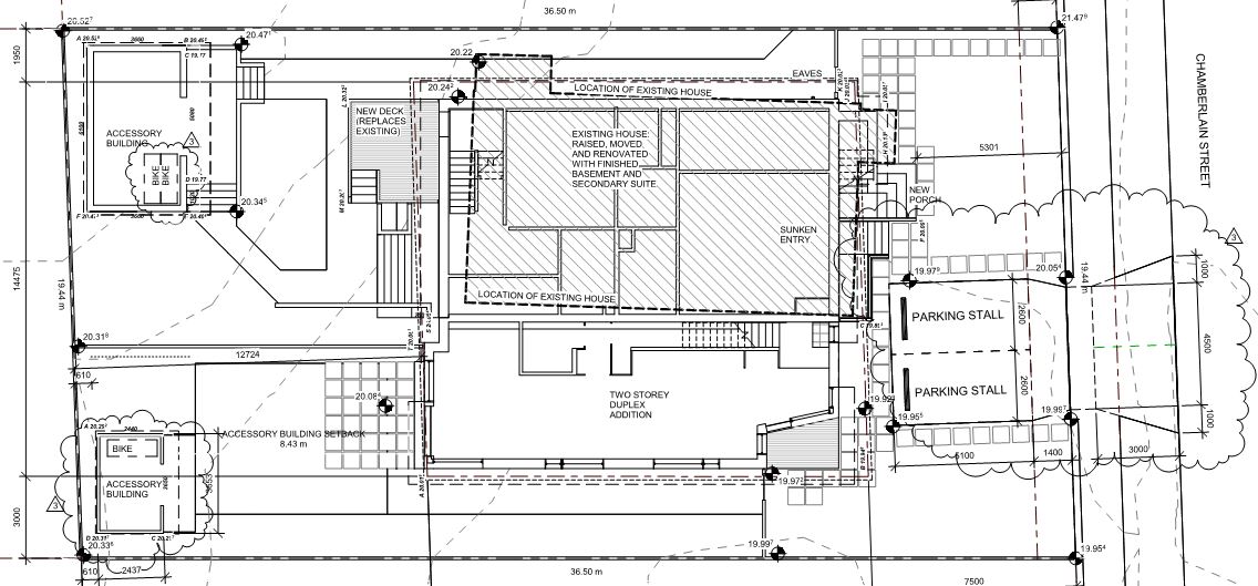
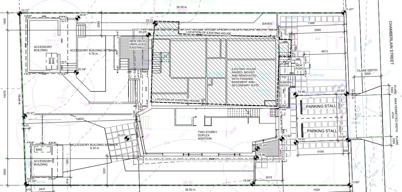
Roof Shape: Since we have to rebuild it anyway, we’ve chosen to do away with the hip roof on the ‘existing’ half. It’s a dramatic aesthetic improvement in my opinion but also a major simplification.
Modeling the original hip roof was a less than satisfying experience. I could not completely capture the intersection of multiple hip roof slopes with the low slope roof of the new half using simple geometry and the dimensions provided on the drawings. And Interactive would have to build this! A gable roof is so much simpler to model and build.
The downside of this change is that the City needs to approve it. We are told it will only take a few weeks, but we have to submit a modified Development Permit package for the planning department’s review AND a revised Building Permit Package for the code inspection side. Good times.
Windows and Doors: We’re confirming final details of our Cascadia Universal Series fiberglass window and door order, which includes committing to the Solar Heat Gain Coefficient (SHGC) for the glazing. This is the value that determines how much heat is allowed through the windows versus reflected away. Higher is better in the model because it allows in more ‘free heat’, but lower is better to prevent overheating, and I think lower is ultimately the better way to go given our climate trends. I’m leaning toward using the lower value (Cardinal 360/180) on the south and west windows and the higher (Cardinal 270/180) on the north and east.
Much more fun than picking a SHGC for glazing is picking custom colours for our front entry doors. Thanks to our kindergartener’s astute design sense, there will be a purple door!
Ventilation: Each half of the duplex will have distinct heat recovery ventilation systems. We had been mulling over whether to pay for the more expensive Paul Novus units that have better heat recovery than the Zehnder units. This makes a difference of about 1 kWh/m2 heating demand, which is not insignificant when the maximum allowable is 15. I’ve got the less efficient Zehnder units in the model now, but this dilemma is likely to resolve itself even more favorably when the new Zehnder Q-series units become available in early 2019. They have vastly improved efficiency at much lower cost than the Paul units. Whoopee.
Heating and Domestic Hot Water Heating: We have chosen to go with Sanden CO2 heat pumps for domestic hot water heating and in-slab radiant hydronic heating on the ground floors. These are air-to-water heat pumps that use CO2 as the heat transfer medium instead of something like R410-A. This technology has so much potential because most other refrigerants have several hundred to several thousand times the global warming potential of CO2. And the thing that doesn’t get talked about (and as far as I can tell has not been studied) is that typical refrigerant-based systems leak refrigerant like crazy. Anecdotal evidence suggests that 80% of the refrigerant that gets added to a system leaks out into the atmosphere.
The limitation of CO2-based systems is that they can only do heating, whereas other refrigerant based systems can provide both heating and cooling. We’re not currently planning to add mechanical cooling and we’re hoping that by the time the climate here becomes California, we’ll have sufficient shade trees to limit our exposure.
I’ve chatted with a few people who have experience with a Sanden “combi” system, including Peter J from Cascadia Architects. He has a functioning system in his Passive House home and shared a few tips for making sure it works properly without overheating the house – like heating the slab overnight and then shutting it off during the day and having a couple of supplemental heat sources for the few very cold days.
And further to the simplicity theme: by using polished concrete floors on the ground floors, we can embed the hydronic tubing; do one concrete pour and save on other floor finishes. It also makes for a clean modern look that we quite like.
And a Bunch of Little Things: I’m keeping a running markup of all the little things that occur to us the more we stare at the drawings – like moving a toilet location; combining the laundry and mechanical rooms to remove a wall and a door; shifting a window so there is room for a single bed along one wall. So basically thinking carefully about what it will be like to live in the space and making sure it works.
We’re quickly approaching the point where we’ve firmed up the bigger system choices. I will then do another update of PHPP, after which we’ll have a very good idea how the numbers will work out. Our decision-making will then shift toward things like kitchen cabinets and countertops and away from things with an appreciable impact on energy demand.
















