I met with our friend and architect, Mark Ashby today. We strategized about what appear to be our biggest issues with the detached house strategy: side setbacks and windows.
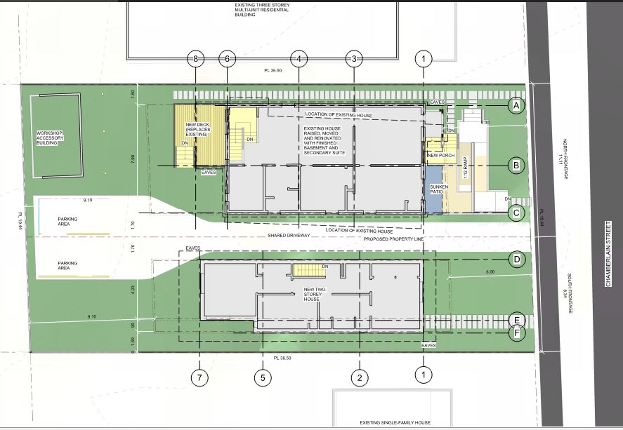
If we were building two new houses, we could easily meet the R1-G Gonzales Small Lot zoning. But because we want to retain the existing house, we are challenged to fit everything in. The existing house is 25 feet wide. The R1-G zoning requires 8’ (2.4m) setbacks to side property lines if you want to have any windows in “habitable” rooms; 5’ (1.8m) if you don’t want windows.
Our lot is 63.8 feet (19.44m) wide and 119.8 feet (36.5m) long. If we met the 8’ setbacks on each side of the existing house, we are left with only 23 feet for the new property. If we also added 8’ on each side of the new house, we’re left with a 7’ wide house! Not exactly viable. So we’re looking at walls that don’t need windows, and looking at variances that can still allow us to meet the intent of the setback/window requirements (ie maintaining privacy between properties).
What we are currently thinking is this:
- Maintain the 8’ setback to the south property line so we can design south facing windows in the new house to get as much passive solar gain as possible.
- Reduce the setbacks between the houses to 5’ on each side, creating a 10’ wide shared driveway to the back. Do not install any windows on the north side of the new house, but maintain some of the windows on the south side of the existing house to allow some natural light. There will be no privacy issues with this variance, since the new house has no windows facing the existing house.
- Reduce the setback at the north property line to 5’, but maintain a few strategically placed windows to allow natural light/egress without compromising privacy for the townhouse property to the north.
- This scheme reduces the width of the new house to about 16 feet outside dimensions, which is narrow but doable.
Here’s what this looks like on the site plan:


